Ладога
+7 (963) 633-88-30
проекты
контакты

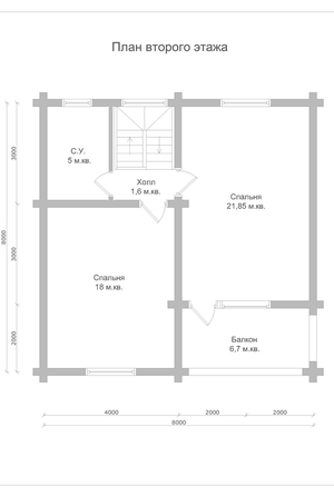
Характеристики
Размеры
8x9.5m
Площадь:
108м2
Санузлов:
2
Комнат
3

Цена
Получить Смету
БазовыйКомплект
ПодКлюч
Просто опишите ваш проект и заполните данные, менеджер
соориентирует вас по срокам и деталям
Мы построили 479 домов
из бревна по нашей
особой
технологии
70560 м2
Построили за все время

Строгий контроль качества

Мы работаем на основе тщательно разработанных и проверенных технологий, что обеспечивает высокую эффективность и надежность. На всех этапах проектов мы строго контролируем качество, чтобы конечный продукт соответствовал стандартам и нормам СНИПам и ГОСТам. В наших проектах участвуют только опытные и высококвалифицированные специалисты из России.

Возведение за 5 месецев под ключ

Основные этапы строительства дома под ключ:

Фундамент

Сначала проводятся инженерно-геологические изыскания, чтобы определить тип грунта и выбрать подходящий фундамент. Это может быть свайно-ростверковый, ростверковый или некоторые виды плитного фундамента. Выбор зависит от результатов исследований.

Стены

 Технология строительства стен зависит от выбранного материала. Например, дома из клееного бруса возводятся с использованием нагелей и пружинных узлов. Нагеля укрепляют стены, а пружинные узлы притягивают брус друг к другу. В каждом венце прокладываются пазы и чаши для угловых соединений, а также используется искусственный межвенцовый утеплитель.

Кровля

Проект кровли разрабатывается с учетом предпочтений заказчика и требований СНИПов. Выбор кровельного покрытия влияет на проектирование стропильной системы и угол наклона кровли. Например, для металлочерепицы стропила имеют сечение 200х50 мм, а угол наклона должен быть не менее 13 градусов. В других случаях используются другие материалы для кровли.

Отделочные работы

Отделочные работы начинаются после завершения возведения стен и крыши. Однако, если конструкция требует времени на усадку или высыхание, как в случае со стенами из оцилиндрованного бревна естественной влажности, этот процесс может занять не менее года. Даже после этого периода в стенах из оцилиндрованного бревна нужно учитывать продолжающуюся усадку при планировании и проведении отделочных работ, поэтому необходимо использовать усадочные элементы. Стены из газобетона также требуют времени на высыхание и усадку, которое обычно завершается в течение полугода после строительства. При проведении отделочных работ важно предусмотреть прокладку всех коммуникаций: электрических сетей, систем отопления, водоснабжения, канализации и вентиляции. Выбор отделочных материалов и их монтаж должны учитывать особенности стен, чтобы обеспечить их способность «дышать», долговечность и оптимальную работу. Особое внимание следует уделить соблюдению норм СНиП, а также использованию качественных материалов и

Инженерные коммуникации

При монтаже электрической проводки необходимо составить план или проект, учитывая пожелания заказчика и требования СНиПов. В случае скрытой проводки кабель должен быть уложен в гофру, соответствующую материалу стен. Например, для деревянных стен следует использовать металлическую гофру. Монтаж системы отопления производится после согласования типа радиаторов и с учетом площади помещений. Также необходимо выбрать котел: газовый, электрический или комбинированный. Установка котла должна соответствовать требованиям СНиПов, а для газовых котлов — дополнительным требованиям газовых служб. В соответствии с нормативными документами, такими как СП 281.1325800.2016, СП 402.1325800.2018 и СП 7.13130.2013, объем котельной зависит от мощности котла. Для котлов мощностью до 30 кВт требуется объем 7,5 м³, от 30 до 60 кВт — 13,5 м³, а для котлов мощностью от 60 до 200 кВт — 15 м³. Система водоснабжения должна быть обеспечена водой. Это может быть центральное водоснабжение или скважина, колодец с хорошей фильтрацией. Подключение к канализации также требует выбора между центральной системой и септиком, часто используемым в частных домах. Септик следует установить и подключить до начала отделочных работ. Его выбор зависит от количества жильцов.

Вентиляция
Естественная вентиляция работает, если приточный клапан ниже вытяжного отверстия. Но часто высота помещения недостаточна для нужного перепада давления, что снижает эффективность. Летом теплый воздух проникает в прохладное помещение, зимой — тепло теряется. На эффективность влияют атмосферное давление, ветер, высота здания и уличная температура, вызывая теплопотери зимой и перегрев летом.

Принудительная вентиляция позволяет контролировать и поддерживать стабильное движение воздуха. Существуют канальные и бесканальные системы принудительной вентиляции. Наиболее распространены канальные решения. Эффективность таких систем определяется силой давления, создаваемого вентилятором, что влияет на радиус их действия.

Приточно-вытяжная система с рекуперацией осуществляет приток свежего воздуха, используя тепло удаляемого для его подогрева или охлаждения. Ключевым компонентом является рекуператор, который передаёт тепло от выходящего потока к поступающему. Система обеспечивает непрерывное поступление очищенного воздуха. Эффективная фильтрация предотвращает проникновение пыли, аллергенов и прочих загрязнений. Если рекуператор оснащён полимерной мембраной, он также передаёт влагу приточному потоку, что позволяет поддерживать влажность в помещении зимой, не допуская пересушивания воздуха из-за замены влажного уличного потока сухим.
Наше производство домокомплектов:
1. Из оцилиндрованного бревна камерной сушки.
2. Из клееного бруса, изготовленного на высококачественном финском оборудовании. Вологодской области.
Вологодской области

Клееный брус 

Оцилиндрованное бревно

Загрузка и отправка домокомплекта

Фото Нашего производство
Построенные нами Дома Бани находятся практически во всех округах Московской области.
Посмотрите наши построенные дома и бани

Дом площадью 130 квадратных метров, из оцилиндрованного бревна д220мм

Дом находится в коттеджном посёлке «Малеевские Просторы» Каширского городского округа Московской области. Его площадь составляет 130 квадратных метров, а конструкция соответствует современным стандартам энергоэффективности и дизайна. Высота потолков на первом этаже — 2,7 метра, что позволяет удобно расположить гостиную, кухню и столовую. На втором этаже потолки варьируются от 1,4 до 3,4 метров, что даёт свободу в планировке жилых и подсобных помещений. Дом построен из брёвен диаметром 220 миллиметров, что гарантирует долговечность, устойчивость и отличную теплоизоляцию. Этот коттедж прекрасно подходит для постоянного проживания, создавая комфортные условия для жизни.

Дом одноэтажная 130м2 в Можайском районе

Село Бараново, расположенное в Можайском городском округе Московской области, представляет собой интересное архитектурное решение. Основное жилое пространство занимает первый этаж, а на втором оборудован лофт. Высота стен на первом этаже составляет 3400 мм, в то время как на втором этаже высота стен варьируется от 2700 мм до 3200 мм.

Дом157м2 в д.Шихово, Дмитровский округ

Дом Онега 157м2 построенный в Деревни Шихово, Дмитровский городской округ, Московская область, Россия, стены из оцилиндрованного бревна диаметром 240 мм. Высота потолков первого этажа 2900 мм, высота второго — от 1600 мм до 3500 мм.

Баня «Карелия» — 77 кв. с мансардным этажом.

Баня площадью 77 квадратных метров. Высота первого этажа — 2,5 метра, второго — от 1,2 до 2,8 метра. Диаметр бревенчатых стен — 240 мм. Была нами построена в селе Старая Ситня, городском округе Ступино, Московская область.

Баня «Весна» — 86 кв. с мансардным этажом.

Баня площадью 86 квадратных метров. Высота первого этажа — 2,5 метра, второго — от 1,2 до 2,8 метра. Диаметр бревенчатых стен — 240 мм. Была нами построена в селе Старая Ситня, городском округе Ступино, Московская область.

Дом «Лесные просторы» площадью 130 м2..

Двухэтажный дом площадью 130 кв. м. Первый этаж высотой 2700 мм, а второй — от 1400 до 3500 мм. Бревна стен диаметром 240 мм. Дом построен нами в городском округе Чехов, Московская область.

Баня «Торонто» — 36 м2, одноэтажная.

В селе Бараново, что в Можайском городском округе Московской области, возвели баню. Площадь постройки составляет 36 квадратных метров. Размеры — 5,5 на 7 метров. Высота первого этажа — 2,5 метра. Стены выполнены из бревен диаметром 240 мм, что обеспечивает отличную теплоизоляцию и эстетичный внешний вид.

Можайский район д.Бараново.

Московская обл. г. Ногинск

Дмитровский район д.Филимоново.

Как мы работаем:
показываем шаг за шагом
01

Фундамента

Прежде чем приступить к проектированию фундамента, необходимо провести комплекс инженерно-геологических изысканий.

Прежде чем приступить к проектированию фундамента, необходимо провести комплекс инженерно-геологических изысканий, направленных на определение характеристик грунта и выявление его геоморфологических особенностей. На основании полученных данных осуществляется выбор оптимального типа фундамента, который может включать свайно-ростверковую, ростверковую или определенные разновидности плитных конструкций. Данный выбор является критически важным этапом, поскольку он основывается на результатах всестороннего анализа грунтовых условий и требует глубокого понимания инженерно-геологических процессов. Работы по залитию фундамента производятся строго с соблюдением СП 45.13330.2017 — свод правил, который регулирует устройство оснований и фундаментов при строительстве новых и реконструкции зданий и сооружений. Это актуализированная редакция СНиП 3.02.01-87., направленных на определение характеристик грунта и выявление его геоморфологических особенностей. На основании полученных данных осуществляется
02

Стены

Стены могут быть построены из клееного бруса, профилированного бревна, прошедшего камерную сушку, керамоблока, газоблока или возведены по каркасной технологии.

Стены могут быть возведены из клееного бруса или оцилиндрованного бревна. Фундамент обязательно покрывается гидроизоляцией, а затем выполняется обвязка доской из лиственницы. При строительстве из бревна или бруса используется межвенцовый утеплитель «Политерм», который обеспечивает естественную циркуляцию воздуха, не слеживается со временем, хорошо сжимается и не гниёт. Его следует укладывать в чашах, угловых соединениях и пазах. Для скрепления венцов применяются «пружинные узлы» в сочетании с нагелями. Важно точно соблюдать технологию монтажа, оставляя зазор над шляпкой пружинного узла или нагелем, чтобы следующий элемент не препятствовал плотному прилеганию бруса или бревна. Само собой, каждый брус или бревно проверяется уровнем.
03

Крыша

Для стропильной системы используют обрезные доски. Их сечение выбирают в зависимости от нагрузки на крышу.

Для стропильной конструкции применяются обрезные доски, сечение которых подбирается в зависимости от нагрузок на кровлю. Важными факторами здесь являются длина пролета, угол наклона крыши и вес кровельного материала. В двухскатных крышах часто используется угол наклона в 30 градусов. Для таких крыш подойдут стропила с сечением 200x50 мм и любое кровельное покрытие. Однако, если угол наклона менее 13 градусов, большинство популярных материалов, таких как металлочерепица, битумная черепица и композитная черепица, окажутся непригодными. После установки стропил, при наличии теплой кровли, снизу монтируется пароизоляция и нижняя обрешетка, затем укладывается утеплитель. На стропила крепятся кронштейны водосточной системы и устанавливается капельник. Далее укладывается ветровлагозащита Изоспан АМ, поверх которой монтируется контробрешетка из брусков размером не менее 50x50 мм, расположенная вдоль стропил. Перпендикулярно контробрешетке укладывается обрешетка из досок размером 150x25 мм с шаг
Узнайте стоимость
вашего дома в течении дня!
Просто опишите ваш проект и заполните данные, менеджер
сориентирует Вас по срокам и деталям
Прикрепить файл

Нажимая на кнопку, вы принимаете Положение и даете Согласие на обработку персональных данных.

Ладога
Ладога
Московская область, Богородский городской округ,  г. Ногинск, ул. 3-го Интернационала, 62
Приходите к нам по будням
с 10:00 до 18:00